


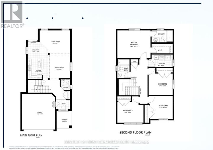
125 Holloway Trail Middlesex Centre (Ilderton), ON N0M 2A0
X12564296
Single-Family Home
Middlesex County
Listed By
CREA - C21 Brokers
Last checked Jan 18 2026 at 4:31 AM EST
- Full Bathrooms: 2
- Partial Bathroom: 1
- Water Heater
- Foundation: Poured Concrete
- Forced Air
- Natural Gas
- Central Air Conditioning
- Unfinished
- N/a
- Brick
- Vinyl Siding
- Sewer: Sanitary Sewer
- Total: 4
- Garage
- Attached Garage
- 2


Description